Szczecin, Pogodno II

Mieszkania na Sprzedaż
nr oferty 354983
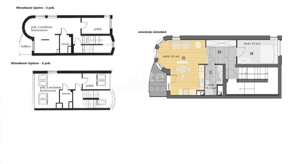
powierzchnia 94 m2
ilość pokoi 4
piętro 1 / 2
standard Bardzo dobry
Do sprzedania 2-poziomowe mieszkanie o pow. 95 m2. Idealna oferta pod inwestycję na wynajem, gdyż mieszkanie zostało podzielone na dwa odrębne dwupokojowe lokale mieszkalne. Wydzielone mieszkania posiadają kuchnie w zabudowie wraz ze sprzętem AGD, umeblowane łazienki, sypialnie i pokoje dzienne. Ogrzewanie gazowe. Mieszkanie położone na zamkniętym i monitorowanym osiedlu usytuowanym w spokojnej dzielnicy Krzekowo przy cichej ulicy. Wokół zabudowa jednorodzinna, bliźniacza lub szeregowa. W pobliżu brak wielkich blokowisk i osiedli. Dojazd do centrum zapewnia pobliska czteropasmowa ulica Taczaka. W pobliżu liczne udogodnienia w postaci parków, miejsc użyteczności publicznej, dróg rowerowych, transportu miejskiego i sklepów.
Odległość od najważniejszych miejsc: przystanek autobusowy 250 m, restauracje 300 m, ul. Taczaka 350 m, Park Przygodna 500 m i sklepy 800 m. Mieszkanie jest z garażem i komórką lokatorską. W pobliżu znajdują się ogródki działkowe i istnieje możliwość przejęcia za dodatkową opłatą jednego ogrodu działkowego o pow. około 300 m2.

KUPUJEMY NIERUCHOMOŚCI ZA GOTÓWKĘ w Szczecinie oraz nad morzem, również zadłużone: mieszkania, domy, działki - płacimy natychmiast

 Powyższe ogłoszenie ma wyłącznie charakter informacyjny. Nie stanowi ono oferty w myśl art. 66 i n. ustawy z dnia 23.04.1964r. Kodeks cywilny (Dz.U. 1964r. Nr 16, poz. 93, ze zm.).

Cena
945 000 zł
Cena za m2
9 949 zł
Czynsz administracyjny
650 zł
Miejscowość
Szczecin, Pogodno II
Rodzaj budynku
Niski blok
Stan prawny
Własność
Rok budowy
2020
Powierzchnia
94 m2
Standard
Bardzo dobry
Piętro
1
Liczba pokoi
4
Ogrzewanie
Gazowe
Ciepła woda
Piec gazowy
Typ kuchni
Aneks
Dodatkowe
Garaż
Wyświetleń
2593
Sprawdź ratę kredytu
945 000 PLN
9 949 PLN / m2

ELITE nieruchomości

tel. 91 817 17 17

zainteresowania@elite.nieruchomosci.pl

Wyrażam zgodę na przetwarzanie danych
945 000 Bardzo dobry
Chcesz otrzymywać podobne oferty?

Skorzystaj z automatycznych powiadomień e-mail o nowych ogłoszeniach

© 2026 Elite Nieruchomości Szczecin - Mieszkania i domy na sprzedaż - Szczecin, Warszewo, Mierzyn, Bezrzecze, Gumieńce