Szczecin, Śródmieście-Centrum

Mieszkania na Sprzedaż
nr oferty 437970
powierzchnia 74 m2
ilość pokoi 3
piętro 4 / 4
standard Do zamieszkania
Komfortowe 3-pokojowe mieszkanie po remoncie

Na sprzedaż przestronne, 3-pokojowe mieszkanie o powierzchni 74 m², położone na ostatnim – 4 piętrze – kamienicy przy ul. 5 Lipca w Szczecinie. 

Mieszkanie przeszło generalny remont w 2022 roku, zostało wykończone w wysokim standardzie i jest gotowe do zamieszkania.
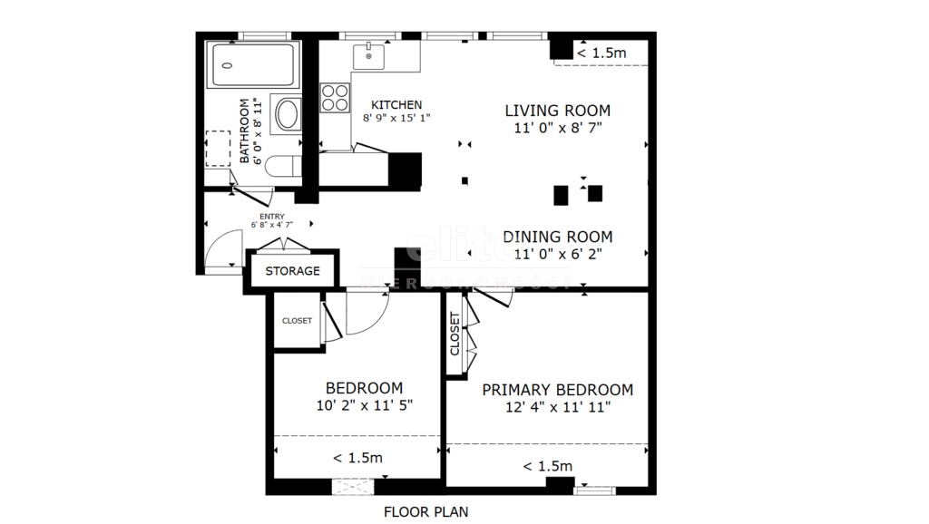
Rozkład pomieszczeń:
  • przedpokój – 6,5 m²
  • salon – 21 m²
  • sypialnia – 15 m²
  • pokój – 12,5 m²
  • kuchnia – 5,5 m²
  • łazienka – 5,3 m²


Standard i wyposażenie:
  • kuchnia na wymiar z wysokiej klasy sprzętem AGD,
  • podłogi: panele Quick-Step oraz gres,
  • stolarka drzwiowa i okienna najwyższej jakości,
  • oświetlenie LED.


Media i opłaty:
  • ogrzewanie i ciepła woda z pieca dwufunkcyjnego (gaz),
  • kanalizacja miejska,
  • woda wliczona w czynsz,
  • możliwość wynajmu miejsca parkingowego na podwórzu kamienicy – ok. 300 zł/mies.

Dodatkowym atutem jest prywatny strych o powierzchni 12 m², idealny jako dodatkowa przestrzeń do przechowywania.

 Budynek i okolica:
Kamienica z początku XX wieku po renowacji, z zadbaną klatką schodową i dostępem do wspólnej piwnicy. Okolica zapewnia pełną infrastrukturę – w sąsiedztwie znajdują się restauracje, kawiarnie, sklepy, szkoły i przedszkola. Bardzo dobra komunikacja – w pobliżu przystanki tramwajowe i autobusowe.

Mieszkanie dwustronne, jasne i funkcjonalne – idealne zarówno dla rodziny, jak i pod inwestycję.

Zapraszam na prezentację.


KUPUJEMY NIERUCHOMOŚCI ZA GOTÓWKĘ w Szczecinie oraz nad morzem, również zadłużone: mieszkania, domy, działki - płacimy natychmiast

 Powyższe ogłoszenie ma wyłącznie charakter informacyjny. Nie stanowi ono oferty w myśl art. 66 i n. ustawy z dnia 23.04.1964r. Kodeks cywilny (Dz.U. 1964r. Nr 16, poz. 93, ze zm.).

Cena
650 000 zł
Cena za m2
8 783 zł
Czynsz administracyjny
400 zł
Miejscowość
Szczecin, Śródmieście-Centrum
Rodzaj budynku
Kamienica
Stan prawny
Własność
Rok budowy
1900
Powierzchnia
74 m2
Standard
Do zamieszkania
Piętro
4
Liczba pokoi
3
Ogrzewanie
Gazowe
Ciepła woda
Piec gazowy
Typ kuchni
Otwarta
Dodatkowe
Garaż
Wyświetleń
23
Sprawdź ratę kredytu
650 000 PLN
8 783 PLN / m2

ELITE nieruchomości

tel. 91 817 17 17

zainteresowania@elite.nieruchomosci.pl

Wyrażam zgodę na przetwarzanie danych
650 000 Do zamieszkania
Chcesz otrzymywać podobne oferty?

Skorzystaj z automatycznych powiadomień e-mail o nowych ogłoszeniach

© 2026 Elite Nieruchomości Szczecin - Mieszkania i domy na sprzedaż - Szczecin, Warszewo, Mierzyn, Bezrzecze, Gumieńce