Świnoujście

Mieszkania na Sprzedaż
nr oferty 437210
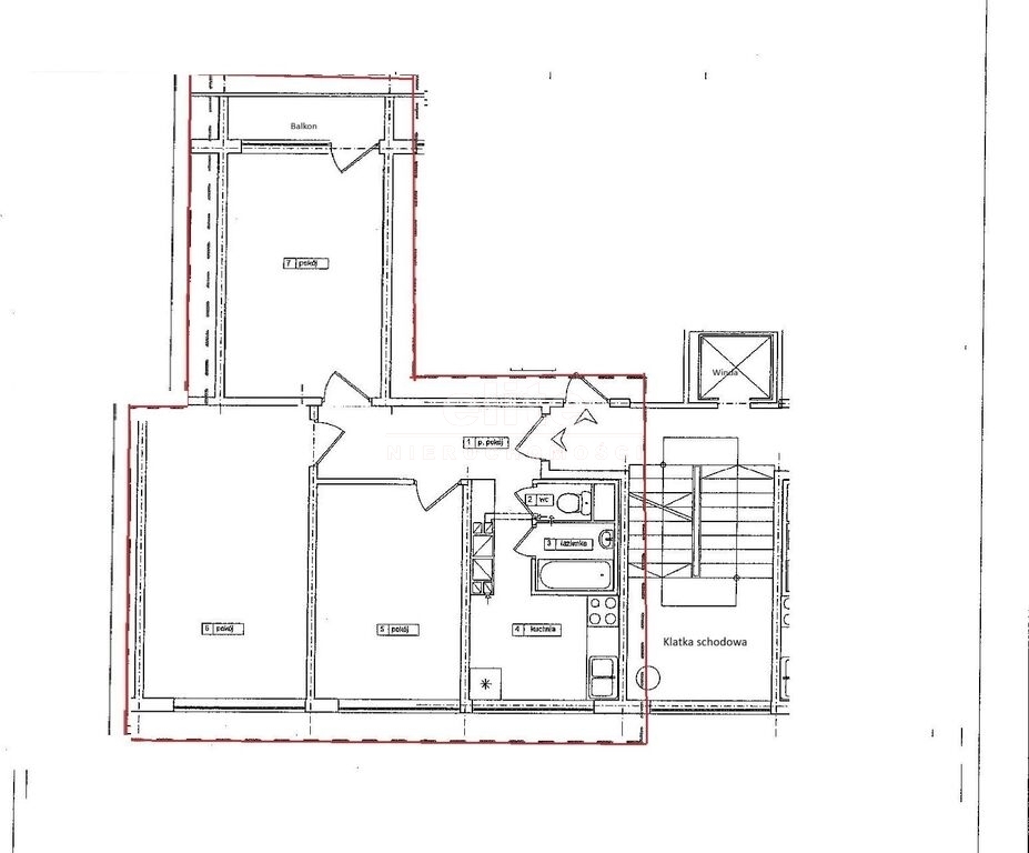
powierzchnia 60 m2
ilość pokoi 3
piętro 2 / 8
standard Do zamieszkania
Przestronne   3 pokoje spółdzielczo-własnościowe

Oferuję spółdzielcze własnościowe mieszkanie o powierzchni 60 m², położone na 2. piętrze z 8 w zadbanym, ocieplonym budynku z windą.
Atuty mieszkania:
  • 3 ustawne pokoje
  • Widna kuchnia z zabudową
  • Łazienka z wanną
  • Balkon
  • Piwnica
  • Klimatyzacja
  • Szafy w zabudowie
  • Wszystkie instalacje wymienione
  • Mieszkanie umeblowane, gotowe do zamieszkania
  • Ogrzewanie i ciepła woda miejskie
  • Miejsca parkingowe przed budynkiem
Informacje dodatkowe:
  • Lokalizacja: Świnoujście, ul. Matejki
  • Cena: 590 000 PLN
  • Czynsz: 740 PLN
Świetna lokalizacja w spokojnej okolicy, w pobliżu sklepów i komunikacji. Idealne dla rodziny lub pod inwestycję.

Zadzwoń i umów się na prezentację!


KUPUJEMY NIERUCHOMOŚCI ZA GOTÓWKĘ w Szczecinie oraz nad morzem, również zadłużone: mieszkania, domy, działki - płacimy natychmiast

 Powyższe ogłoszenie ma wyłącznie charakter informacyjny. Nie stanowi ono oferty w myśl art. 66 i n. ustawy z dnia 23.04.1964r. Kodeks cywilny (Dz.U. 1964r. Nr 16, poz. 93, ze zm.).

Cena
590 000 zł
Cena za m2
9 816 zł
Czynsz administracyjny
740 zł
Miejscowość
Świnoujście
Rodzaj budynku
Wysoki blok
Stan prawny
Spółdzielcze własnościowe prawo
Rok budowy
1978
Powierzchnia
60 m2
Standard
Do zamieszkania
Piętro
2
Liczba pokoi
3
Ogrzewanie
CO miejskie
Ciepła woda
Wodociąg miejski
Typ kuchni
Z oknem
Dodatkowe
Winda, Garaż
Wyświetleń
68
Sprawdź ratę kredytu
590 000 PLN
9 816 PLN / m2

ELITE nieruchomości

tel. 91 817 17 17

zainteresowania@elite.nieruchomosci.pl

Wyrażam zgodę na przetwarzanie danych
590 000 Do zamieszkania
Chcesz otrzymywać podobne oferty?

Skorzystaj z automatycznych powiadomień e-mail o nowych ogłoszeniach

© 2026 Elite Nieruchomości Szczecin - Mieszkania i domy na sprzedaż - Szczecin, Warszewo, Mierzyn, Bezrzecze, Gumieńce