Szczecin, Zdroje

Mieszkania na Sprzedaż
nr oferty 436448
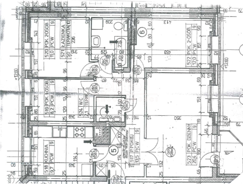
powierzchnia 78 m2
ilość pokoi 4
piętro 4 / 4
standard Do drobnego remontu
Słoneczne 4 pokoje z balkonem, Zdroje

Przestronne mieszkanie o powierzchni 78,7 m2, położone w dzielnicy Zdroje. Idealne dla rodziny.
Możliwość zakupu przez osoby spoza UE.

Lokal składa się z:
- 4 pokoi, o powierzchni: ok. 8m2, 11m2, 12m2 oraz 20m2
- widnej kuchni o powierzchni 9,7m2
- łazienki o powierzchni 5m2
- wc o pow. 2m2
- przedpokoju wraz z korytarzem o łącznej powierzchni ok. 13m2
- balkonu ok. 2m2
- do mieszkania przynależy również piwnica o powierzchni ok. 10 m2, z metalowymi drzwiami, oraz wózkownia.

Okna nieruchomości wychodzą na wschód oraz zachód, co gwarantuje dobre nasłonecznienie oraz piękny widok, m.in na korony Puszczy Bukowej.

Atutem mieszkania jest również jego lokalizacja. Przystanek szybkiego tramwaju lub autobusowy, z którego można dostać się do centrum, znajduje się w odległości 200 metrów. W pobliżu jest szkoła (300m), sklepy (najbliższy w odległości 200m), ryneczek Zdroje (800metrów), poczta oraz kościół (1 km). Zaledwie 2 kilometry dalej jest Puszcza Bukowa.

Przy bloku są miejsca parkingowe dla mieszkańców. Spółdzielnia dzierżawi również teren, na którym znajdują się garaże.



Planujesz skredytować to marzenie – również Ci pomożemy.

KUPUJEMY NIERUCHOMOŚCI ZA GOTÓWKĘ w Szczecinie oraz nad morzem, również zadłużone: mieszkania, domy, działki - płacimy natychmiast

 Powyższe ogłoszenie ma wyłącznie charakter informacyjny. Nie stanowi ono oferty w myśl art. 66 i n. ustawy z dnia 23.04.1964r. Kodeks cywilny (Dz.U. 1964r. Nr 16, poz. 93, ze zm.).

Cena
720 000 zł
Cena za m2
9 148 zł
Czynsz administracyjny
1 000 zł
Miejscowość
Szczecin, Zdroje
Rodzaj budynku
Niski blok
Stan prawny
Spółdzielcze własnościowe prawo z KW
Rok budowy
1993
Powierzchnia
78 m2
Standard
Do drobnego remontu
Piętro
4
Liczba pokoi
4
Typ kuchni
Z oknem
Wyświetleń
8
Sprawdź ratę kredytu
720 000 PLN
9 148 PLN / m2

ELITE nieruchomości

tel. 91 817 17 17

zainteresowania@elite.nieruchomosci.pl

Wyrażam zgodę na przetwarzanie danych
720 000 Do drobnego remontu
Chcesz otrzymywać podobne oferty?

Skorzystaj z automatycznych powiadomień e-mail o nowych ogłoszeniach

© 2025 Elite Nieruchomości Szczecin - Mieszkania i domy na sprzedaż - Szczecin, Warszewo, Mierzyn, Bezrzecze, Gumieńce