Szczecin, Warszewo

Mieszkania na Wynajem
Obniżka ceny
nr oferty 437675
powierzchnia 73 m2
ilość pokoi 3
piętro parter / 3
standard Bardzo dobry
3 pokojowy apartament na Garden House

Komfortowe mieszkanie do wynajęcia na najładniejszym osiedlu na Warszewie "Garden House". Osiedle zamknięte monitorowane dla mieszkańców dostępne plac zabaw dla dzieci, sala fitness (bez opłat dla mieszkańców i najemców osiedla). Bliskość komunikacji miejskiej jak i sklepów. Budynek przystosowany dla niepełnosprawnych (windy na każdy poziom w tym do garażu). Mieszkania mają 290cm wysokości co przekłada się na komfort i poczucie przestrzeni. Osiedle ma dużo zieleni i jest oddalone od ruchu ulicznego.

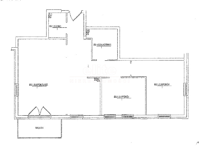
Lokal znajduje się na wysokim parterze i posiada 73,90 m2 na co składają się:
- duży salon z aneksem kuchennym 37m2 i wyjściem na balkon
- sypialnia 14,10m2
- pokój 10,10m2 (nieumeblowany)
- łazienka 5m2
- pomieszczenie gospodarcze z pralko-suszarką 2,6m2

W mieszkaniu mamy dwie bardzo duże i pojemne zabudowane szafy do sufitu (jedna w sypialni a druga na korytarzu). W salonie nowa zabudowa Besta prawie po sufit zapewniająca bardzo dużo miejsca jak i miejsce pod telewizor. Nowoczesna kuchnia z dużą ilością szafek oraz sprzętem AGD (zmywarka, lodówka, płyta indukcyjna). W salonie zamontowana klimatyzacja Daikin (pompa ciepła - można również nią grzać). W całym mieszkaniu rolety zewnętrzne elektrycznie sterowane z pilota. W pomieszczeniu gospodarczym praktycznie nowa pralko-suszarka Electrolux i dodatkowe półki i regał.
Do mieszkania przynależy 1 stanowisko parkingowe w garażu pod budynkiem z zamontowaną już ładowarką do aut elektrycznych i stanowisko jest jest za jedyne 300zł/miesiąc. (istnieje opcja wynajęcia drugiego stanowiska za dopłatą). Na terenie osiedla miejsca dostępne również dla mieszkańców za bramą (na zasadzie kto pierwszy zaparkuje)

Najemca pokrywa dodatkowo : Koszty czynszu administracyjnego (783,46 z ogrzewaniem ale bez wody (doliczana zaliczka w zależności od ilości osób), prąd i Internet.

Kaucja 7000zł. Umowa na min rok.
Zapraszamy i polecamy

KUPUJEMY NIERUCHOMOŚCI ZA GOTÓWKĘ w Szczecinie oraz nad morzem, również zadłużone: mieszkania, domy, działki - płacimy natychmiast

 Powyższe ogłoszenie ma wyłącznie charakter informacyjny. Nie stanowi ono oferty w myśl art. 66 i n. ustawy z dnia 23.04.1964r. Kodeks cywilny (Dz.U. 1964r. Nr 16, poz. 93, ze zm.).

Cena
3 500 zł
Cena za m2
47 zł
Czynsz administracyjny
783 zł
Miejscowość
Szczecin, Warszewo
Rodzaj budynku
Budynek apartamentowy
Stan prawny
Własność
Rok budowy
2008
Powierzchnia
73 m2
Standard
Bardzo dobry
Liczba pokoi
3
Ogrzewanie
CO miejskie
Ciepła woda
Wodociąg miejski
Typ kuchni
Aneks
Dodatkowe
Winda, Garaż
Wyświetleń
6
3 500 PLN
47 PLN / m2

ELITE nieruchomości

tel. 91 817 17 17

zainteresowania@elite.nieruchomosci.pl

Wyrażam zgodę na przetwarzanie danych
3 500 Bardzo dobry
Chcesz otrzymywać podobne oferty?

Skorzystaj z automatycznych powiadomień e-mail o nowych ogłoszeniach

© 2025 Elite Nieruchomości Szczecin - Mieszkania i domy na sprzedaż - Szczecin, Warszewo, Mierzyn, Bezrzecze, Gumieńce